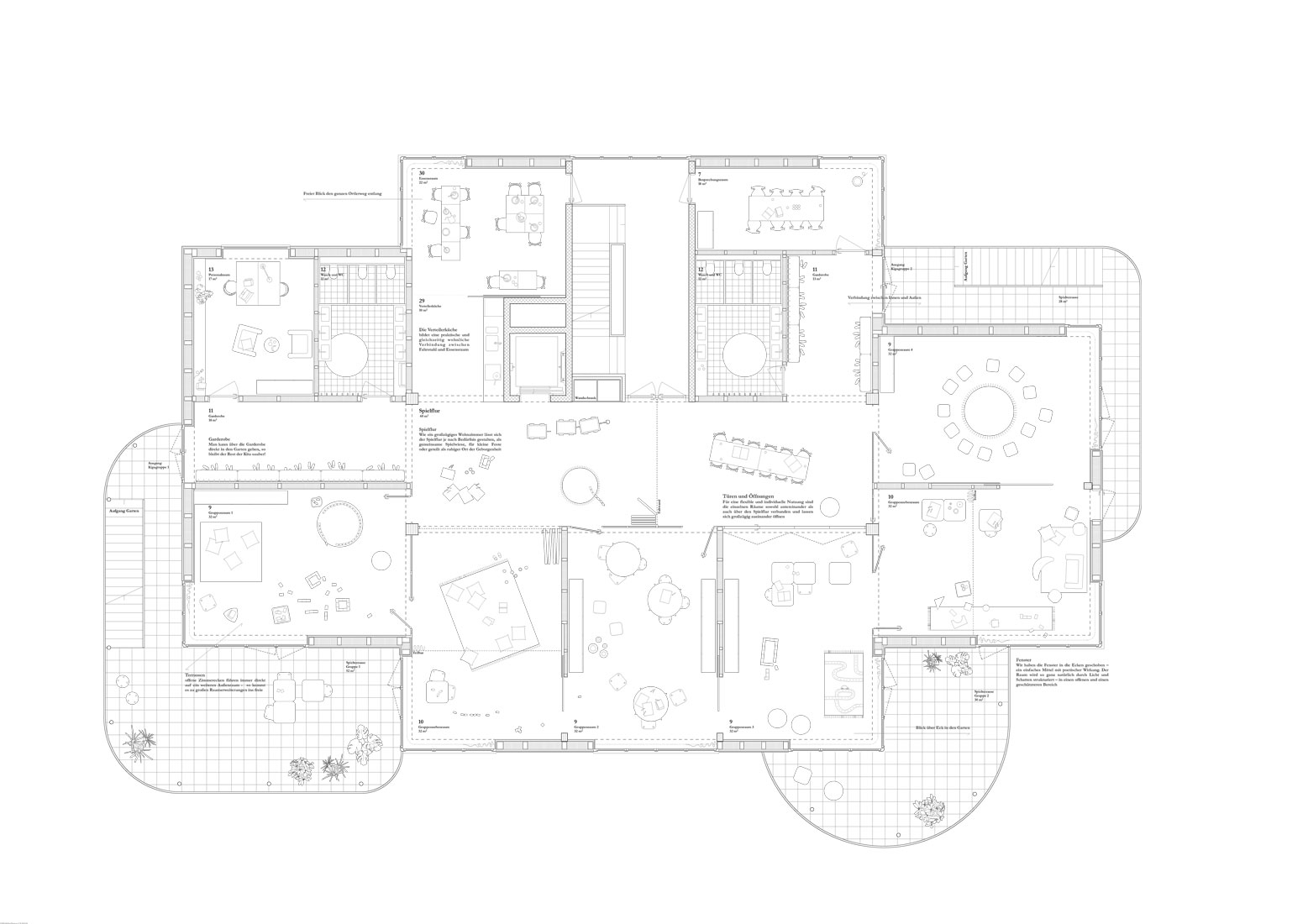
NEUBAU NOW
HfG Offenbach - Neubau der Hochschule für Gestaltung
Offenbach am Main 2023
3.Preis
neuerhafen.com
hfg-offenbach.de - Ausstellung
mit Studio RW Landschaftsarchitekten / IB Hausladen / Visualisierungen ArtefactoryLab







Baufeld 108 - Zirkulares Wohnhaus in der Hafencity / PATRIZIA / Hamburg 2021
1.Preis - Fertigstellung 2026
mit Philipp Obkircher / Studio RW Landschaftsarchitekten / ARUP / Transsolar / Müller BBM






IZW - Erweiterungsbau III Institut für Zoo- und Wildtierforschung / Berlin 2021
1.Preis - Fertigstellung 2025
mit Studio RW Landschaftsarchitekten / IB Hausladen / HHP Berlin


Neubau Polizeipräsidiums und Polizeirevier / Ravensburg 2021
Anerkennung
mit Tragraum Ingenieure / IB Hausladen

Katastrophenschutzzentrum / Bitburg 2020


Kita Ortlerweg / Berlin 2020
mit Locodrom


Erweiterung Landtag Nordrhein-Westfalen / Düsseldorf 2020
2.Preis Realisierungteil / 1.Preis Ideenteil
mit Capatti Staubach / ARUP Berlin / IB Hausladen / SFB Ingenieure / HHP Berlin / RW+
Bilder Ponnie Images








Als ARGE Kim Nalleweg + Trujillo / Fotos Philipp Obkircher
Wettbewerb 1.Preis / Realisiert als Generalplaner / Berlin 2020
philippobkircher_7325_02_small.gif)
philippobkircher_7341_02_small.gif)
philippobkircher_panorama_small.gif)
philippobkircher_7434_small.gif)
philippobkircher_7446_small.gif)
philippobkircher_7580_small.gif)
philippobkircher_7524_small.gif)
Previews @ Philipp Obkircher





DIN Deutsches Institut für Normung e.V. - Hauptzentrale Berlin
1.Preis / Berlin 2019






Wohnhaus Einhäusschenquerstraße / UNESCO Gründungsviertel Lübeck
Wettbewerb 1.Preis / Lübeck 2017




Wohnhaus Braunstraße / UNESCO Gründungsviertel Lübeck
Lübeck 2020

Wien Museum Neu - Erweiterung
Offener, internationaler Wettbewerb 2.Preis
mit TDB Landschaftsarchitektur / Wien 2016






Erweiterung Komische Oper Unter den Linden / Berlin 2020

Haus des Gasten - Eingangsgebäude Technisch-Historisches-Museum / Peenemünde 2019
Wettbewerb 1.Preis - Fertigstellung 2025




St. Martin - Soziokulturelles Zentrum Apolda
Engere Wahl / Apolda 2020



"Wohnen und was noch?" Geladene Studie zu genossenschaftlichen Quartieren in HH
Hamburg 2019







SIEMENSSTADT 2.0
mit Lützow 7 / IB Hausladen / IB Kraft / Freie Planungsgruppe
2. Rundgang / Berlin 2020









Quartierssporthaus HH-Wilhelmsburg / Hamburg 2020


.gif)
Areal Bundeswehrhochhaus GEWOBA AG
Anerkennung / mit ARUP Berlin / Bremen 2020




Mother´s House / Hamburg 2018




Wettbewerb Südtondernhalle
Niebüll / 2020

Wettbewerb Haus des Gastes Nebel
Amrum / 2020


Wettbewerb Gartenfreunde Neukölln
mit Studio RW / Berlin / 2018



Wettbewerb Neubau Labore Optobiologie und Max Planck Institut
Engere Wahl / Berlin 2019


Wettbewerb Erweiterung Stadttheater Landshut
mit TDB Landschaftsarchitektur / Landshut 2018


Wettbewerb Bildungshaus Norderstedt
mit TDB Landschaftsarchitektur / Hamburg / 2018


.gif)

Wettbewerb Hauptzentrale Sparkasse Bremen
Bremen / 2018


Wettbewerb Museum Völklinger Hütte / Anerkennung
Völklingen 2017




Haus für eine Kinderpsychologin und ihren Bruder
Gründungsviertel Lübeck 2017

M20 / Berlin 2016
Platz 14 von ca. 500 / als ARGE Kim Nalleweg + Trujillo

BIZ - Besucherinformationszentrum Deutscher Bundestag / Berlin 2016
Anerkennung / als ARGE Kim Nalleweg + Trujillo / mit TDB Landschaftsarchitektur





Amt für kirchliche Dienste - EKD / Berlin 2017


Gründungsviertel Lübeck - UNESCO Welterbe
Ein 1.Preis / Lübeck 2015


Wettbewerb Wohnen in der Speicherstadt
Hamburg / long ago

IMPRESSUM
Angaben gemäß § 5 TMG:
STUDIO KIM NALLEWEG Architekten Pariser Str. 44
D-10707 Berlin / Tel +49 30 88911610
Umsatzsteuer-Identifikationsnummer gemäß § 27 a Umsatzsteuergesetz: USt-Idnr. DE
Verantwortlich i. S. v. § 6 Mediendienstestaatsvertrag (MDStV):
Dipl. Ing. Max Julius Nalleweg Freischaffender Architekt
Eingetragen in die Architektenkammer Berlin Nr.137899
Bilder: Kim Nalleweg Architekten / ARGE Kim Nalleweg + Trujillo / Philipp Obkircher
Visualisierung Landtag NRW: Ponnie Images
Dipl. Ing. Kyung-Ae Kim Freischaffende Architektin, Architektenkammer Berlin Nr.14563
Dipl. Ing. Max Julius Nalleweg Freischaffender Architekt, Architektenkammer Berlin Nr.13789
Berufsrechtliche Regelungen: Berliner Architekten- und Baukammergesetz (ABKG) vom 6. Juli 2006, zuletzt geändert durch Gesetz vom 7. Juli 2016 (GVBl. S. 425) Satzung der Architektenkammer Berlin vom 6. Oktober 1994 in der Fassung vom 24. November 2016 Berufsordnung der Architektenkammer Berlin vom 21. November 2009 http://www.ak-berlin.de/architektenkammer-berlin/Regelwerke.html
Alle Rechte liegen beim Urheber. Kein Inhalt dieser Webseite darf ohne zuvor schriftlich erteilte Genehmigung vervielfältigt, veröffentlicht, verändert, weitergeleitet, wiederverwendet oder adaptiert werden. Trotz sorgfältiger Prüfung übernehmen wir für die Richtigkeit der angebotenen Informationen keinerlei Haftung und Gewähr. Für eventuelle Schäden, die aus der Nutzung oder Nichtnutzung dieses Internetauftrittes entstehen, übernehmen wir keine Haftung.
© KN 2020
Die Inhalte unserer Seiten wurden mit größter Sorgfalt erstellt. Für die Richtigkeit, Vollständigkeit und Aktualität der Inhalte können wir jedoch keine Gewähr übernehmen. Als Diensteanbieter sind wir gemäß § 7 Abs.1 TMG für eigene Inhalte auf diesen Seiten nach den allgemeinen Gesetzen verantwortlich.Nach §§ 8 bis 10 TMG sind wir als Diensteanbieter jedoch nicht verpflichtet, übermittelte oder gespeicherte fremde Informationen zu überwachen oder nach Umständen zu forschen, die auf eine rechtswidrige Tätigkeit hinweisen. Verpflichtungen zur Entfernung oder Sperrung der Nutzung von Informationen nach den allgemeinen Gesetzen bleiben hiervon unberührt. Eine diesbezügliche Haftung ist jedoch erst ab dem Zeitpunkt der Kenntnis einer konkreten Rechtsverletzung möglich. Bei Bekanntwerden von entsprechenden Rechtsverletzungen werden wir diese Inhalte umgehend entfernen.
Haftung für Links
Unser Angebot enthält Links zu externen Webseiten Dritter, auf deren Inhalte wir keinen Einfluss haben. Deshalb können wir für diese fremden Inhalte auch keine Gewähr übernehmen. Für die Inhalte der verlinkten Seiten ist stets der jeweilige Anbieter oder Betreiber der Seiten verantwortlich. Die verlinkten Seiten wurden zum Zeitpunkt der Verlinkung auf mögliche Rechtsverstöße überprüft. Rechtswidrige Inhalte waren zum Zeitpunkt der Verlinkung nicht erkennbar. Eine permanente inhaltliche Kontrolle der verlinkten Seiten ist jedoch ohne konkrete Anhaltspunkte einer Rechtsverletzung nicht zumutbar. Bei Bekanntwerden von Rechtsverletzungen werden wir derartige Links umgehend entfernen.
Urheberrecht
Die durch die Seitenbetreiber erstellten Inhalte und Werke auf diesen Seiten unterliegen dem deutschen Urheberrecht. Die Vervielfältigung, Bearbeitung, Verbreitung und jede Art der Verwertung außerhalb der Grenzen des Urheberrechtes bedürfen der schriftlichen Zustimmung des jeweiligen Autors bzw. Erstellers. Downloads und Kopien dieser Seite sind nur für den privaten, nicht kommerziellen Gebrauch gestattet. Soweit die Inhalte auf dieser Seite nicht vom Betreiber erstellt wurden, werden die Urheberrechte Dritter beachtet. Insbesondere werden Inhalte Dritter als solche gekennzeichnet. Sollten Sie trotzdem auf eine Urheberrechtsverletzung aufmerksam werden, bitten wir um einen entsprechenden Hinweis. Bei Bekanntwerden von Rechtsverletzungen werden wir derartige Inhalte umgehend entfernen.
Datenschutz
Die Nutzung unserer Webseite ist in der Regel ohne Angabe personenbezogener Daten möglich. Soweit auf unseren Seiten personenbezogene Daten (beispielsweise Name, Anschrift oder eMail-Adressen) erhoben werden, erfolgt dies, soweit möglich, stets auf freiwilliger Basis. Diese Daten werden ohne Ihre ausdrückliche Zustimmung nicht an Dritte weitergegeben. Wir weisen darauf hin, dass die Datenübertragung im Internet (z.B. bei der Kommunikation per E-Mail) Sicherheitslücken aufweisen kann. Ein lückenloser Schutz der Daten vor dem Zugriff durch Dritte ist nicht möglich. Der Nutzung von im Rahmen der Impressumspflicht veröffentlichten Kontaktdaten durch Dritte zur Übersendung von nicht ausdrücklich angeforderter Werbung und Informationsmaterialien wird hiermit ausdrücklich widersprochen. Die Betreiber der Seiten behalten sich ausdrücklich rechtliche Schritte im Falle der unverlangten Zusendung von Werbeinformationen, etwa durch Spam-Mails, vor.